Intesa Commerciale

Roncadelle nuovo ampio trilocale al primo e ultimo piano in palazzina con triplo box

Home > Ricerca > Dettaglio immobile
Rif: B990 E1

RONCADELLE

BRESCIA
Condividi Linkedin Whatsapp Stampa
Stampa

Rif: B990 E1 - Roncadelle (BS) in nuova palazzina di 6 unita' (costruzione antisismica, fabbricato coibentato, impianto fotovoltaico 2,85 Kwatt per unità) nuovo trilocale al primo e ultimo piano
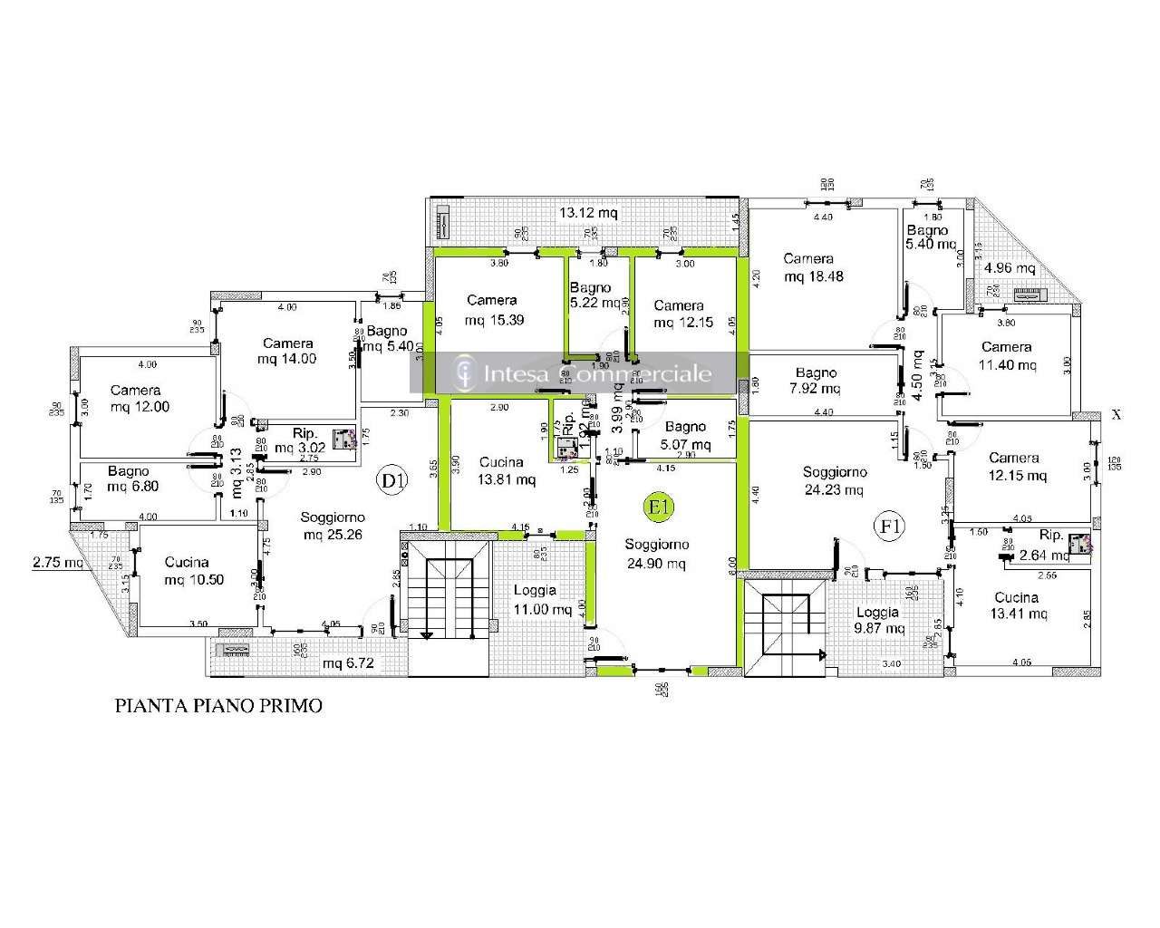
Soluzione al piano primo Tipologia E 1: Ampio Trilocale composto da soggiorno e cucina abitabile con loggia di 11 mq, 2 spaziose camere, ampia balconata, 2 bagni , disimpegno con ripostiglio, box triplo ( mq 53 ), 360.000
possibilita' cantina e posti auto
Consegna giugno 2026; finiture personalizzabili; termoautonomi, climatizzati; classe energetica A/4 ;
Detrazioni fiscali, bonus garage
Intesa Commerciale 030-2423333 Cod. B990 D1

Intesa Commerciale , opera da decenni sul mercato immobiliare Bresciano e, forte delle migliaia di affari conclusi senza alcun contenzioso, rappresenta una soluzione solida e professionale a qualsiasi problema di acquisto, vendita immobiliare in città e provincia. La visione strategica del business, da sempre prerogativa del management, permette ad Intesa Commerciale di operare in perfetto equilibrio fra dinamismo ed oculatezza nelle valutazioni: sono queste le caratteristiche che hanno permesso all'agenzia di eccellere nel settore dell' intermediazione e della compravendita immobiliare .
Intesa Commerciale è sinonimo di serietà e professionalità nell'offerta di un servizio completo e personalizzato, a cura di personale qualificato che garantisce la migliore assistenza dalle fasi preliminari di consulenza, ricerca e mediazione, alle fasi finali di stipula del contratto e al rogito notarile.




Richiedi maggiori informazioni

Autorizzazione al trattamento dei dati personali+
Dichiaro di aver letto l'informativa sulla privacy ed accetto le condizioni d'utilizzo del servizio.
Riempi il campo con il codice riportato nell'immagine*
Codice Captcha
Chiamaci Contattaci